How To Get A Food Truck Permit In California . — for mobile food facilities that are allowed in los angeles county, such as trucks and carts, operators must have permits, pass inspection,. no matter your ultimate goal, every food truck in california will need specific licenses and permits to operate. so here’s a summary of the licenses and permits you need to operate a food truck in california legally: All food trucks and carts operating in orange county need an orange county permit. do i need a permit and how do i get a permit? you can’t apply for a business license or health permit online for a food truck in california. Choose a business structure & register with the irs at. discover essential tips and legal requirements for starting a food truck in california in 2024. You must go to the city’s. to open a food truck in california, you must comply with a series of state, federal, and local requirements.
from blog.goodfynd.com
— for mobile food facilities that are allowed in los angeles county, such as trucks and carts, operators must have permits, pass inspection,. do i need a permit and how do i get a permit? Choose a business structure & register with the irs at. you can’t apply for a business license or health permit online for a food truck in california. discover essential tips and legal requirements for starting a food truck in california in 2024. You must go to the city’s. so here’s a summary of the licenses and permits you need to operate a food truck in california legally: All food trucks and carts operating in orange county need an orange county permit. no matter your ultimate goal, every food truck in california will need specific licenses and permits to operate. to open a food truck in california, you must comply with a series of state, federal, and local requirements.
How To Start A Food Truck Licenses and Permits Goodfynd
How To Get A Food Truck Permit In California Choose a business structure & register with the irs at. to open a food truck in california, you must comply with a series of state, federal, and local requirements. Choose a business structure & register with the irs at. discover essential tips and legal requirements for starting a food truck in california in 2024. You must go to the city’s. — for mobile food facilities that are allowed in los angeles county, such as trucks and carts, operators must have permits, pass inspection,. so here’s a summary of the licenses and permits you need to operate a food truck in california legally: no matter your ultimate goal, every food truck in california will need specific licenses and permits to operate. do i need a permit and how do i get a permit? you can’t apply for a business license or health permit online for a food truck in california. All food trucks and carts operating in orange county need an orange county permit.
From budgetbranders.com
Food Truck Licenses & Permits Requirements Explained How To Get A Food Truck Permit In California do i need a permit and how do i get a permit? discover essential tips and legal requirements for starting a food truck in california in 2024. Choose a business structure & register with the irs at. to open a food truck in california, you must comply with a series of state, federal, and local requirements. . How To Get A Food Truck Permit In California.
From thefoodtruckguide.com
How To Start A Food Truck [Licenses Permits] Overview How To Get A Food Truck Permit In California no matter your ultimate goal, every food truck in california will need specific licenses and permits to operate. You must go to the city’s. so here’s a summary of the licenses and permits you need to operate a food truck in california legally: discover essential tips and legal requirements for starting a food truck in california in. How To Get A Food Truck Permit In California.
From vendingproservice.com
Guide How to Get Food Trucks for an Event StepByStep Vending How To Get A Food Truck Permit In California discover essential tips and legal requirements for starting a food truck in california in 2024. You must go to the city’s. All food trucks and carts operating in orange county need an orange county permit. no matter your ultimate goal, every food truck in california will need specific licenses and permits to operate. — for mobile food. How To Get A Food Truck Permit In California.
From www.pdffiller.com
Fillable Online Food Truck Application Permit Fax Email Print pdfFiller How To Get A Food Truck Permit In California you can’t apply for a business license or health permit online for a food truck in california. no matter your ultimate goal, every food truck in california will need specific licenses and permits to operate. All food trucks and carts operating in orange county need an orange county permit. do i need a permit and how do. How To Get A Food Truck Permit In California.
From koronapos.com
How To Start a Food Truck Business? A StepbyStep Guide How To Get A Food Truck Permit In California discover essential tips and legal requirements for starting a food truck in california in 2024. to open a food truck in california, you must comply with a series of state, federal, and local requirements. Choose a business structure & register with the irs at. You must go to the city’s. All food trucks and carts operating in orange. How To Get A Food Truck Permit In California.
From www.pdffiller.com
Fillable Online FOOD TRUCK PERMIT APPLICATION FORM Fax Email Print How To Get A Food Truck Permit In California Choose a business structure & register with the irs at. discover essential tips and legal requirements for starting a food truck in california in 2024. — for mobile food facilities that are allowed in los angeles county, such as trucks and carts, operators must have permits, pass inspection,. you can’t apply for a business license or health. How To Get A Food Truck Permit In California.
From www.webstaurantstore.com
Food Truck Permits & Licenses Explained How to Get Started How To Get A Food Truck Permit In California All food trucks and carts operating in orange county need an orange county permit. to open a food truck in california, you must comply with a series of state, federal, and local requirements. Choose a business structure & register with the irs at. you can’t apply for a business license or health permit online for a food truck. How To Get A Food Truck Permit In California.
From www.youtube.com
Food Truck Business Permits [ 4 Permits Every Food truck needs] Step by How To Get A Food Truck Permit In California — for mobile food facilities that are allowed in los angeles county, such as trucks and carts, operators must have permits, pass inspection,. All food trucks and carts operating in orange county need an orange county permit. so here’s a summary of the licenses and permits you need to operate a food truck in california legally: do. How To Get A Food Truck Permit In California.
From foodtruckempire.com
License Checklist Every Permit You Need To Start a Food Truck How To Get A Food Truck Permit In California discover essential tips and legal requirements for starting a food truck in california in 2024. no matter your ultimate goal, every food truck in california will need specific licenses and permits to operate. — for mobile food facilities that are allowed in los angeles county, such as trucks and carts, operators must have permits, pass inspection,. You. How To Get A Food Truck Permit In California.
From bizee.com
MultiState Food Truck Regulations Explained How To Get A Food Truck Permit In California no matter your ultimate goal, every food truck in california will need specific licenses and permits to operate. do i need a permit and how do i get a permit? discover essential tips and legal requirements for starting a food truck in california in 2024. so here’s a summary of the licenses and permits you need. How To Get A Food Truck Permit In California.
From bqfoodtrucksandtrailers.com
Food Truck Licenses and Permits How To Get A Food Truck Permit In California You must go to the city’s. — for mobile food facilities that are allowed in los angeles county, such as trucks and carts, operators must have permits, pass inspection,. Choose a business structure & register with the irs at. so here’s a summary of the licenses and permits you need to operate a food truck in california legally:. How To Get A Food Truck Permit In California.
From www.pinterest.com
How to Start a Food Truck 19 Organize Your Licenses and Permits How To Get A Food Truck Permit In California All food trucks and carts operating in orange county need an orange county permit. you can’t apply for a business license or health permit online for a food truck in california. no matter your ultimate goal, every food truck in california will need specific licenses and permits to operate. to open a food truck in california, you. How To Get A Food Truck Permit In California.
From shivakitchen.com
6 Amazing Facts About StepbyStep Guide to Food Truck License How To Get A Food Truck Permit In California you can’t apply for a business license or health permit online for a food truck in california. Choose a business structure & register with the irs at. All food trucks and carts operating in orange county need an orange county permit. discover essential tips and legal requirements for starting a food truck in california in 2024. so. How To Get A Food Truck Permit In California.
From phenterminesideaffectsdgu.blogspot.com
san jose food truck permit TopOfTheLine zine Picture Archive How To Get A Food Truck Permit In California you can’t apply for a business license or health permit online for a food truck in california. You must go to the city’s. All food trucks and carts operating in orange county need an orange county permit. to open a food truck in california, you must comply with a series of state, federal, and local requirements. do. How To Get A Food Truck Permit In California.
From digitalnexthubs.com
how to start a food truck business in california Rules, Regulations How To Get A Food Truck Permit In California discover essential tips and legal requirements for starting a food truck in california in 2024. so here’s a summary of the licenses and permits you need to operate a food truck in california legally: — for mobile food facilities that are allowed in los angeles county, such as trucks and carts, operators must have permits, pass inspection,.. How To Get A Food Truck Permit In California.
From massholefranchise.com
Path To Get Your Food Truck Liense Masshole Lobster Food Truck Franchise How To Get A Food Truck Permit In California — for mobile food facilities that are allowed in los angeles county, such as trucks and carts, operators must have permits, pass inspection,. to open a food truck in california, you must comply with a series of state, federal, and local requirements. so here’s a summary of the licenses and permits you need to operate a food. How To Get A Food Truck Permit In California.
From www.foodparks.io
Food Truck Permits and Licenses How To Get A Food Truck Permit In California you can’t apply for a business license or health permit online for a food truck in california. no matter your ultimate goal, every food truck in california will need specific licenses and permits to operate. do i need a permit and how do i get a permit? Choose a business structure & register with the irs at.. How To Get A Food Truck Permit In California.
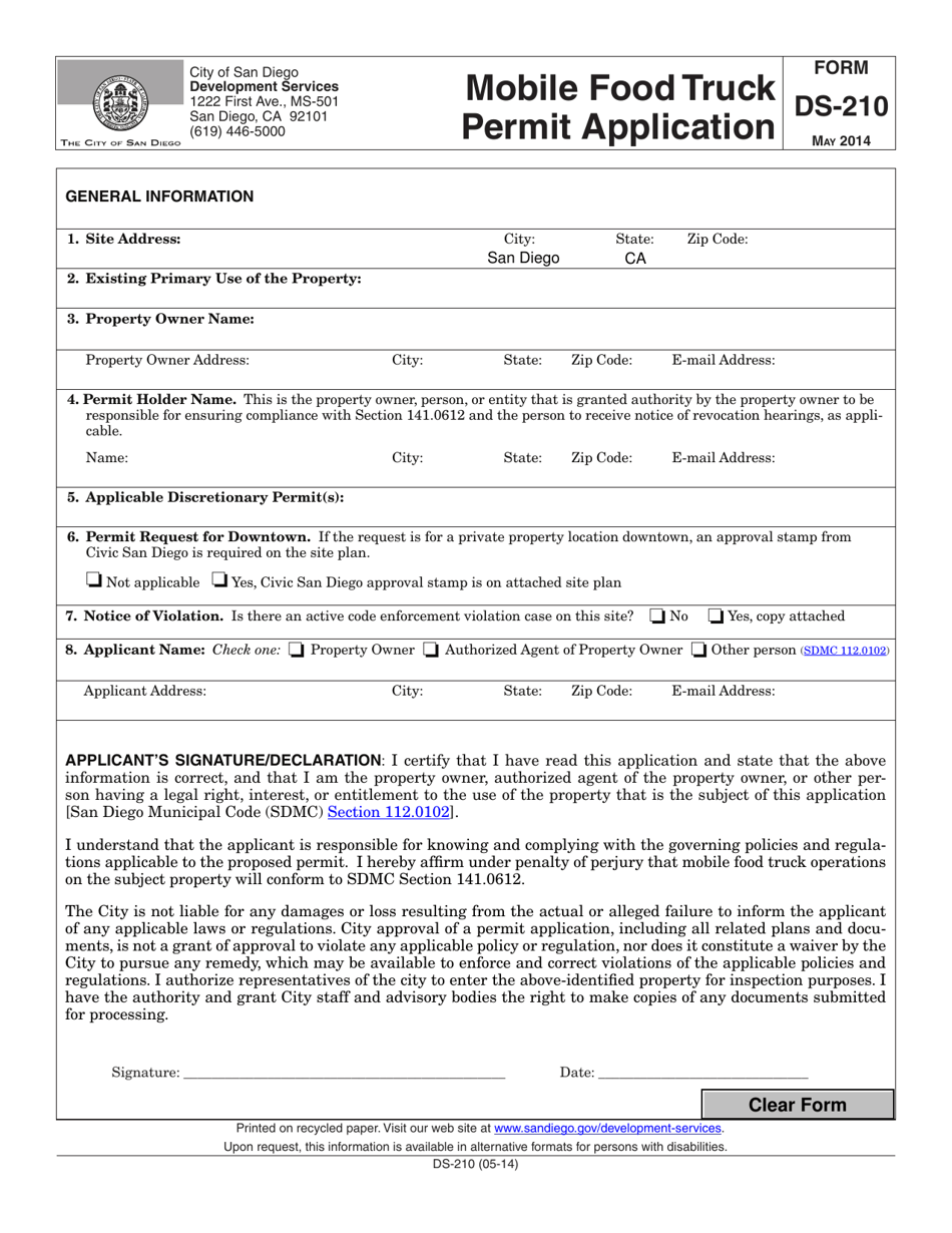
From www.templateroller.com
Form DS210 Fill Out, Sign Online and Download Fillable PDF, City of How To Get A Food Truck Permit In California — for mobile food facilities that are allowed in los angeles county, such as trucks and carts, operators must have permits, pass inspection,. no matter your ultimate goal, every food truck in california will need specific licenses and permits to operate. All food trucks and carts operating in orange county need an orange county permit. do i. How To Get A Food Truck Permit In California.